Berkley Estates

Your trusted property experts in Leicestershire. Specialising in sales, lettings, development, property management, and block management, our experienced team provides a full-service approach with a commitment to excellence and outstanding results.

Barbara Road
£350,000
4 Bedrooms
1 Bathrooms

Like what you see?

For Sale

Property Summary

A well-proportioned family home situated in the sought-after residential area of Rowley Fields, Leicester, offering versatile living space and a generous rear garden.

Positioned behind a smart frontage with off-road parking, this attractive property presents an excellent opportunity for buyers seeking a comfortable family home in a desirable setting.

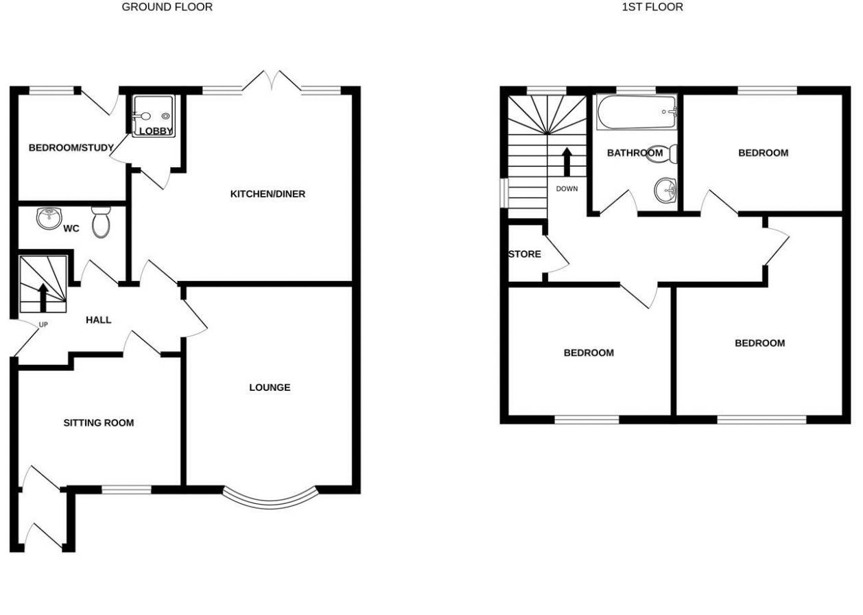
To the ground floor, the accommodation includes two reception rooms to the front elevation—the larger serving as the main living room with ample space for family relaxation, complemented by a secondary sitting room offering further flexibility. To the rear, a spacious dining kitchen forms the heart of the home, with doors opening directly onto the garden, ideal for entertaining and everyday family living. A further room to the ground floor is currently arranged as a home office, but has previously served as a fourth bedroom, providing excellent adaptability.

Upstairs, the property offers three well-sized bedrooms, two of which are comfortable doubles, alongside a well-appointed family bathroom.

Externally, the rear garden is of an excellent size, enjoying a non-overlooked aspect and providing plenty of space for outdoor dining, play, and gardening.

Location
Rowley Fields is a highly regarded residential area of Leicester, popular with families and professionals alike. The area benefits from convenient access to the city centre, as well as excellent local schooling, parks, and everyday amenities. With strong transport links and nearby shopping facilities, Rowley Fields combines suburban peace with urban convenience, making it one of Leicester’s most desirable neighbourhoods.

At Berkley Estates, we invest time heavily in the visual and digital representation of our client’s properties with the in-house marketing department we have.

Follow us @berkleyestates

Our property descriptions are short because we would rather talk with you about the properties we sell and let and of course meet with you and show you around.

Get in contact with us

By providing Berkley Estates with your contact information, you acknowledge and agree to our Privacy Policy and consent to receiving marketing communications, including automated calls, text messages, and emails, some of which may use artificial or prerecorded voices. This consent is not a condition of purchasing any products or services, and you may opt out at any time. To stop receiving text messages, reply “STOP” at any time. To unsubscribe from emails, click the unsubscribe link included in our emails. Message and data rates may apply.