Berkley Estates

Your trusted property experts in Leicestershire. Specialising in sales, lettings, development, property management, and block management, our experienced team provides a full-service approach with a commitment to excellence and outstanding results.

Cotes Road
£1,300,000 Price Guide
6 Bedrooms
4 Bathrooms

Like what you see?

For Sale

Property Summary

A Discreetly Marketed, Exceptional Residence of Outstanding Quality – 3,272 sq ft of Impeccable Living Space with Detached Annexe, Landscaped Grounds and Open Field Views

Discreetly marketed due to the exclusive nature of the home, this remarkable contemporary residence represents one of the finest modern properties to come to market within Barrow upon Soar in recent years. Set behind secure electric gates and approached via an extensive private driveway, the property offers an impressive total of 3,272 square feet of versatile living accommodation, complemented by a substantial detached double garage that has been thoughtfully converted to provide a stylish games room with self-contained guest accommodation above.

Positioned in an exceptionally private location, the property offers the highest level of modern security and seclusion, whilst being conveniently situated for excellent local and independent schooling. Loughborough Grammar School and Loughborough High School are within 10 minutes’ drive, Ratcliffe College within 15 minutes, and Leicester Grammar School around 25 minutes. For commuters, London St Pancras can be reached in approximately 1 hour 20 minutes from Loughborough station, while East Midlands Airport is just 20 minutes away and Birmingham Airport approximately 45 minutes.

Originally constructed in 2022 by a highly regarded local developer renowned for building exceptional homes, this property has been elevated even further by the current owners, who have invested significantly in bespoke interior design and finishing. Working in collaboration with UBER Interiors, the interiors exude luxury and precision, with every detail carefully considered. Charnwood Kitchens have created a breathtaking bespoke kitchen and matching cabinetry throughout, including fitted wardrobes and dressing room furniture. The result is a home that delivers an unparalleled level of quality, elegance, and comfort.

Property Features

  • Discreetly Marketed Luxury Home Offering 3,272 Sq Ft Of Exceptional Living Space Behind Secure Electric Gates
  • Built In 2022 By A Renowned Local Developer, Elevated By UBER Interiors & Charnwood Kitchens
  • Detached Double Garage Converted To Games Room With Self-Contained Annexe Above
  • Grand Oak Staircase & Galleried Landing, With Underfloor Heating Throughout The Ground Floor
  • Spectacular Bespoke Kitchen & Living Space Featuring Premium Appliances, Island & Bi-Fold Doors
  • Principal Suite With Two Juliet Balconies, Dressing Room By Charnwood & Luxury En-Suite
  • Fully Landscaped Gardens By The Garden Design Co With Outdoor Kitchen, Fire Pit & Hot Tub
  • Highly Private Setting With Open Field Views, Viewings Strictly By Appointment Only

At Berkley Estates, we invest time heavily in the visual and digital representation of our client’s properties with the in-house marketing department we have.

Follow us @berkleyestates

Our property descriptions are short because we would rather talk with you about the properties we sell and let and of course meet with you and show you around.

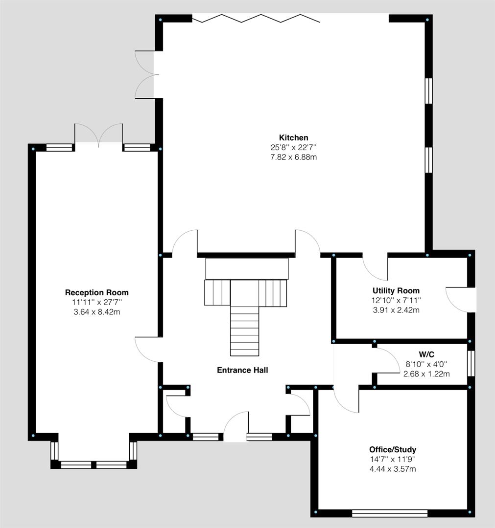
Floorplans

Get in contact with us

By providing Berkley Estates with your contact information, you acknowledge and agree to our Privacy Policy and consent to receiving marketing communications, including automated calls, text messages, and emails, some of which may use artificial or prerecorded voices. This consent is not a condition of purchasing any products or services, and you may opt out at any time. To stop receiving text messages, reply “STOP” at any time. To unsubscribe from emails, click the unsubscribe link included in our emails. Message and data rates may apply.