Battenberg Road
£185,000
2 Bedrooms
1 Bathrooms

Like what you see?

SSTC

Property Summary

Beautifully presented two bedroom terraced property, ideally situated in the popular Newfoundpool area, offering excellent access to Leicester city centre and a wide range of local amenities and transport links.

The accommodation is particularly well presented throughout, having been carefully maintained by the current owners, and offers a great balance of character and modern living.

To the ground floor, there are two spacious reception rooms, both enjoying plenty of natural light and finished in a tasteful style, with original features adding to the overall feel of the home. To the rear, a contemporary kitchen provides a practical and well laid out space.

To the first floor, there are two good size bedrooms, both replete with character and each benefitting from feature fireplaces. The accommodation is completed by a modern, recently renovated family bathroom, finished to a high standard.

Externally, the property benefits from a well maintained rear yard, providing a pleasant and low maintenance outdoor space. Parking is on street, with ample availability.

This is a fantastic opportunity to acquire a well presented home in a highly convenient location, ideally suited to first time buyers, investors or those looking to be close to the city centre.

Property Features

  • Beautifully Presented Two Bedroom Terraced Property
  • Popular Newfoundpool Location Close To Leicester City Centre
  • Two Spacious Reception Rooms With Natural Light And Character
  • Contemporary Kitchen And Modern Family Bathroom
  • Two Good Size Bedrooms With Feature Fireplaces
  • Well Maintained Rear Yard And On Street Parking

At Berkley Estates, we invest time heavily in the visual and digital representation of our client’s properties with the in-house marketing department we have.

Follow us @berkleyestates

Our property descriptions are short because we would rather talk with you about the properties we sell and let and of course meet with you and show you around.

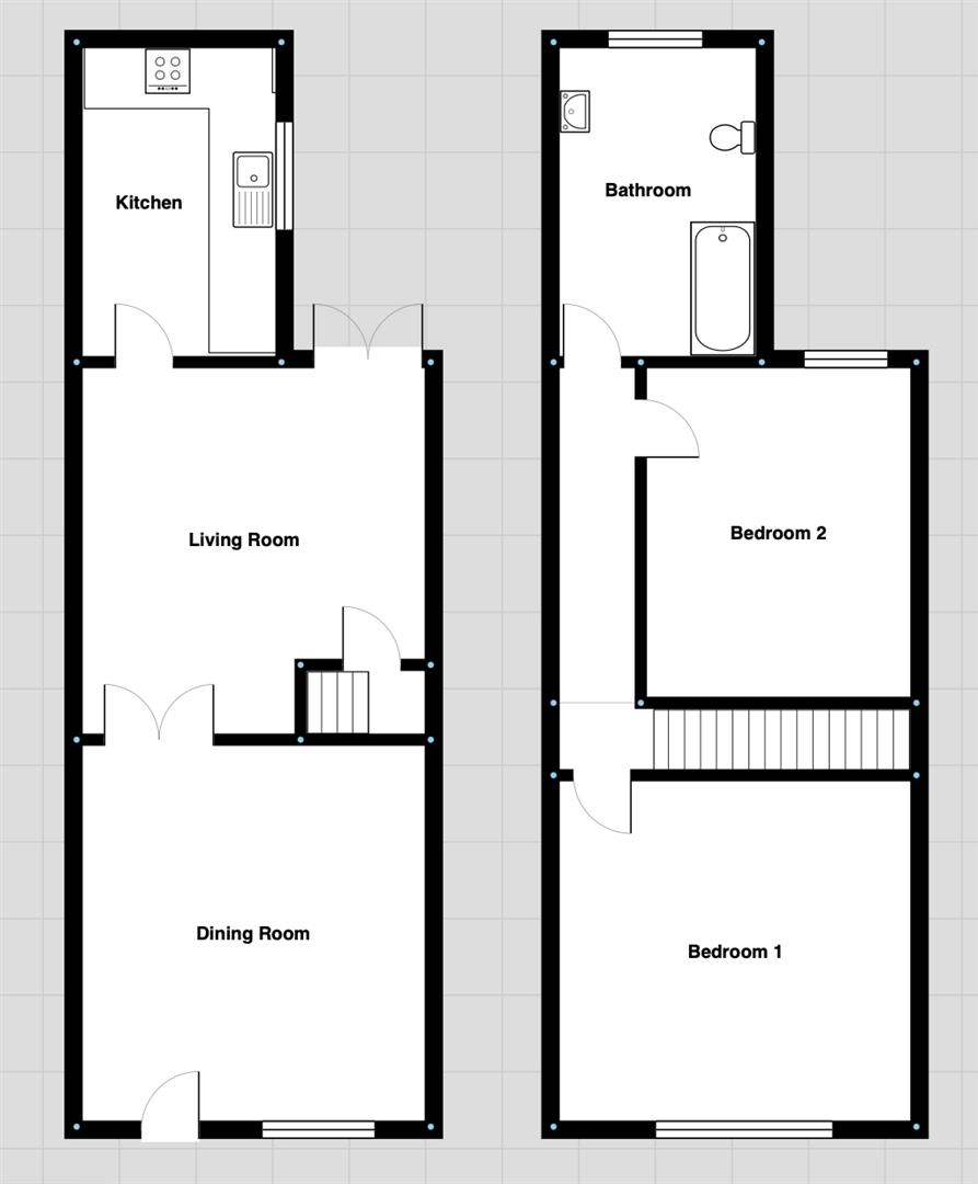
Floorplans

Get in contact with us

By providing Berkley Estates with your contact information, you acknowledge and agree to our Privacy Policy and consent to receiving marketing communications, including automated calls, text messages, and emails, some of which may use artificial or prerecorded voices. This consent is not a condition of purchasing any products or services, and you may opt out at any time. To stop receiving text messages, reply “STOP” at any time. To unsubscribe from emails, click the unsubscribe link included in our emails. Message and data rates may apply.