Boundary Road
£210,000 Price Guide
2 Bedrooms
1 Bathrooms

Like what you see?

For Sale

Property Summary

*** GUIDE PRICE - £210,000-£220,000 ***

A beautifully presented two-bedroom semi-detached bungalow, completed in 2024, offering modern living in a desirable village location.

Built to an exceptional standard, this superb new build home combines thoughtful design with high-quality finishes throughout. Set on a generous plot, the property features a private driveway to the side elevation, comfortably accommodating two vehicles.

Inside, the layout is both practical and inviting. The two bedrooms are generously proportioned, providing comfortable and versatile spaces for residents or guests. The spacious reception room enjoys an abundance of natural light, creating an airy and welcoming atmosphere. The sleek, contemporary kitchen has been fitted with modern units and integrated appliances, offering both style and functionality. Completing the interior is a tastefully appointed bathroom, finished to a high specification.

To the rear, the low-maintenance garden offers a private outdoor retreat, enjoying plenty of sunshine throughout the day – perfect for relaxing or entertaining.

This property is offered with no onward chain, making it an attractive and straightforward purchase for those looking to move without delay.

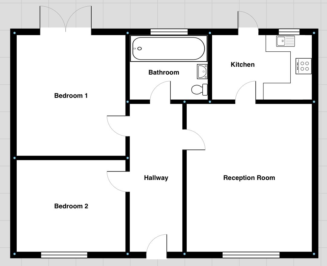
Measurements:

•Living Room – 3.19m x 4.14m (10’6” x 13’7”)
•Bedroom 1 – 2.77m x 3.23m (9’1” x 10’7”)
•Bedroom 2 – 2.78m x 2.22m (9’1” x 7’3”)
•Kitchen – 2.59m x 2.60m (8’6” x 8’6”)
•Bathroom – 1.75m x 2.17m (5’9” x 7’1”)

NOTE: The property has a substantial loft space, which is fully boarded and runs the length and width of the property.

Location – Situated in the charming village of Mountsorrel, this home benefits from a wealth of local amenities, including independent shops, cafés, and traditional pubs. The village is well served by reputable schools, scenic walking routes along the River Soar, and excellent transport links to Leicester, Loughborough, and beyond.

Property Features

  • Brand New Build Bungalow, Completed In 2024 To An Exceptional Standard
  • Strong Rental Potential - 6% Yield
  • Spacious And Light-Filled Reception Room
  • Modern Fitted Kitchen With Contemporary Units And Appliances
  • Stylish, Tastefully Finished Bathroom
  • Private Driveway To Side Elevation, Parking For Two Cars
  • Low-Maintenance Rear Garden With Plenty Of Sunshine
  • Sought-After Mountsorrel Village Location

At Berkley Estates, we invest time heavily in the visual and digital representation of our client’s properties with the in-house marketing department we have.

Follow us @berkleyestates

Our property descriptions are short because we would rather talk with you about the properties we sell and let and of course meet with you and show you around.

Floorplans

Get in contact with us

By providing Berkley Estates with your contact information, you acknowledge and agree to our Privacy Policy and consent to receiving marketing communications, including automated calls, text messages, and emails, some of which may use artificial or prerecorded voices. This consent is not a condition of purchasing any products or services, and you may opt out at any time. To stop receiving text messages, reply “STOP” at any time. To unsubscribe from emails, click the unsubscribe link included in our emails. Message and data rates may apply.