Church Lane
£435,000
5 Bedrooms
2 Bathrooms

Like what you see?

SSTC

Property Summary

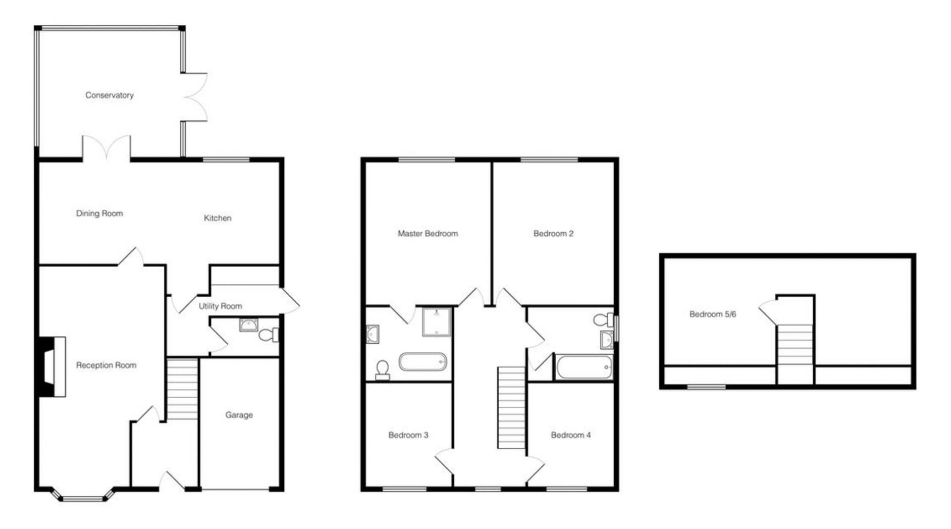
Occupying a peaceful position with open countryside views to the rear, this immaculately presented five-bedroom detached residence offers approximately 1,539 sq. ft. of stylish and versatile living space. The home has been thoughtfully updated throughout, with a recently refitted kitchen and bathrooms, and enjoys a wonderful sense of privacy rarely found in similar homes locally. Early viewing is highly recommended to appreciate the space, setting, and standard of finish on offer.

Upon entering, you are welcomed by a bright and spacious entrance hall, providing access to the principal ground floor accommodation. This includes a generous living room featuring a characterful fireplace with inset log burner, a conservatory overlooking the rear garden, a practical utility room, guest cloakroom, and a superb open-plan kitchen and dining space. The kitchen has been beautifully refitted with modern cabinetry, integrated appliances, and ample space for entertaining and family life.

To the first floor, the impressive master suite is positioned to the rear elevation, benefitting from a luxurious en suite bathroom with freestanding bath and separate shower. Three further double bedrooms are served by a contemporary family bathroom, also recently refitted to a high specification.

The second floor offers a versatile open-plan room, ideal as a large principal suite, guest room, home office, or even as two separate spaces, depending on the needs of the new owners.

Externally, the property enjoys off-road parking to the front on a private driveway leading to an integral single garage. To the rear, a beautifully maintained, non-overlooked garden provides the perfect setting for outdoor entertaining, featuring a patio, decking, and a good-sized lawn, all framed by open countryside views.

At Berkley Estates, we invest time heavily in the visual and digital representation of our client’s properties with the in-house marketing department we have.

Follow us @berkleyestates

Our property descriptions are short because we would rather talk with you about the properties we sell and let and of course meet with you and show you around.

Floorplans

Get in contact with us

By providing Berkley Estates with your contact information, you acknowledge and agree to our Privacy Policy and consent to receiving marketing communications, including automated calls, text messages, and emails, some of which may use artificial or prerecorded voices. This consent is not a condition of purchasing any products or services, and you may opt out at any time. To stop receiving text messages, reply “STOP” at any time. To unsubscribe from emails, click the unsubscribe link included in our emails. Message and data rates may apply.