Falconer Crescent
£240,000
3 Bedrooms
2 Bathrooms

Like what you see?

SSTC

Property Summary

IMMACULATELY WELL PRESENTED AND EXTENDED THREE BEDROOM TOWN HOUSE SITUATED IN A POPULAR AND CONVENIENT LOCATION WITHIN THE RESIDENTIAL AREA OF NEW PARKS.
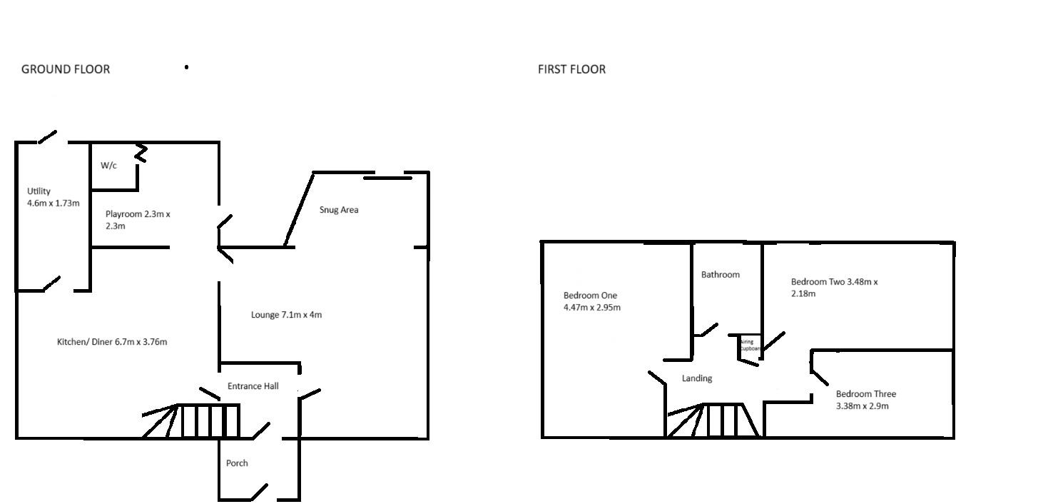
The property is being offered in excellent internal condition consists in brief; Entrance hall, lounge, feature fitted kitchen/diner, lean to conservatory, utility room and downstairs wc.
To the first floor there are three bedrooms and family bathroom. To the exterior there is a low maintenance garden to the rear.

Entrance Porch: With access to

Entrance hall : Staircase leading to first floor landing and access through to the lounge and kitchen/diner.

Kitchen/diner : Range of wall and base units with work surfaces over, stainless steel sink and drainer, plumbing for washing machine, electric oven with hob and extractor, tiled splash back, breakfast bar, Upvc double glazed window to front and rear, access to the lounge, access to the utility and space for a table and chairs.

Playroom; door to garden

Utility : Upvc double glazed door to garden, plumbing for washing machine and base units.

WC : Has wash hand basin.

Lounge : Upvc double glazed window to front, door leading to kitchen/diner and sliding door leading though into lean too.

First floor landing : Gives access to all three bedrooms and bathroom.

Bedroom one : With a Upvc double glazed window, built in storage and radiator.

Bedroom two : Has a Upvc double glazed window, built in storage and radiator.

Bedroom three : Upvc double glazed window, built in storage and radiator.

Bathroom : wash hand basin, low level WC, shower cubical, fully tiled walls and floor and a Upvc double glazed window.

Outside : To the rear is a fence enclosed garden with a decked seating area, a flagged patio and a lawn. To the front of the property there is a gravelled garden area

Property Features

  • IMMACULATLEY PRESENTED
  • EXTENDED
  • KITCHEN/DINER
  • LOUNGE
  • PLAYROOM
  • THREE BEDROOMS

At Berkley Estates, we invest time heavily in the visual and digital representation of our client’s properties with the in-house marketing department we have.

Follow us @berkleyestates

Our property descriptions are short because we would rather talk with you about the properties we sell and let and of course meet with you and show you around.

Floorplans

Get in contact with us

By providing Berkley Estates with your contact information, you acknowledge and agree to our Privacy Policy and consent to receiving marketing communications, including automated calls, text messages, and emails, some of which may use artificial or prerecorded voices. This consent is not a condition of purchasing any products or services, and you may opt out at any time. To stop receiving text messages, reply “STOP” at any time. To unsubscribe from emails, click the unsubscribe link included in our emails. Message and data rates may apply.