Henley Crescent
£220,000 Price Guide
3 Bedrooms
1 Bathrooms

Like what you see?

SSTC

Property Summary

*** GUIDE PRICE - £220,000-£230,000 ***

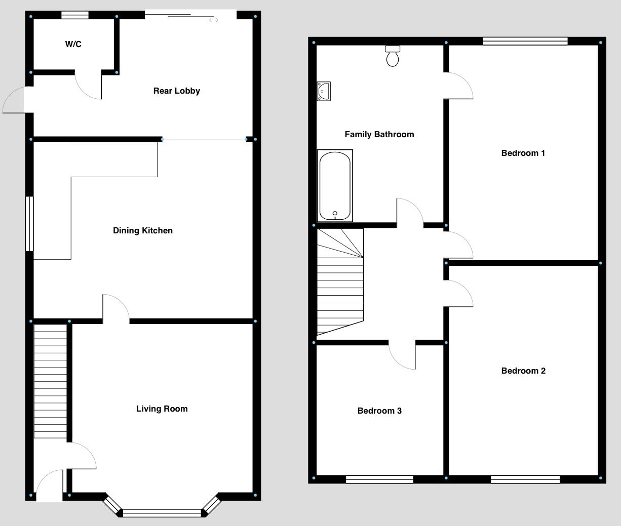
Situated in the ever-popular Braunstone Town, this three-bedroom semi-detached home presents an excellent opportunity for those seeking a spacious property with plenty of potential. Having been enhanced by a two-storey rear extension, the home offers generous living accommodation spread across two floors — ideal for a first-time buyer or young family looking to put their own stamp on a property.

Upon entering, you’re welcomed into a bright entrance hall leading to a bay-fronted reception room, perfect for relaxing or entertaining. To the rear, the open-plan dining kitchen provides a sociable hub of the home, with ample space for both dining and cooking. A downstairs W/C adds everyday convenience.

Upstairs, there are three well-proportioned bedrooms, including two spacious doubles, alongside a family bathroom that cleverly doubles as a Jack and Jill ensuite, offering flexibility for family living.

Outside, the property benefits from off-road parking to the front, while to the rear lies a large, private garden — an ideal space for children to play or for summer gatherings.

About Braunstone Town:
Braunstone Town is a well-established and highly sought-after suburb of Leicester, renowned for its strong sense of community and convenient location. The area boasts a range of local amenities, reputable schools, parks, and excellent transport links into the city centre and surrounding areas, making it a perfect setting for growing families and professionals alike.

Property Features

  • Spacious Three-Bedroom Semi-Detached Home In The Highly Sought-After Area Of Braunstone Town
  • Two-Storey Rear Extension Providing Generous Living Space Across Two Floors
  • Bay-Fronted Reception Room And Open-Plan Dining Kitchen With Downstairs W/C
  • Three Well-Proportioned Bedrooms Including Two Large Doubles And A Jack & Jill Family Bathroom
  • Off-Road Parking To The Front And A Good-Sized, Private Rear Garden
  • Ideal For First-Time Buyers Or Young Families Wanting Space To Grow, Close To Amenities, Schools, And Transport Links

At Berkley Estates, we invest time heavily in the visual and digital representation of our client’s properties with the in-house marketing department we have.

Follow us @berkleyestates

Our property descriptions are short because we would rather talk with you about the properties we sell and let and of course meet with you and show you around.

Floorplans

Get in contact with us

By providing Berkley Estates with your contact information, you acknowledge and agree to our Privacy Policy and consent to receiving marketing communications, including automated calls, text messages, and emails, some of which may use artificial or prerecorded voices. This consent is not a condition of purchasing any products or services, and you may opt out at any time. To stop receiving text messages, reply “STOP” at any time. To unsubscribe from emails, click the unsubscribe link included in our emails. Message and data rates may apply.