Berkley Estates

Your trusted property experts in Leicestershire. Specialising in sales, lettings, development, property management, and block management, our experienced team provides a full-service approach with a commitment to excellence and outstanding results.

Midland Road
£160,000 Price Guide
3 Bedrooms
1 Bathrooms

Like what you see?

SSTC

Property Summary

Offered to the market with huge potential, this spacious three-bedroom home on Midland Road represents an excellent opportunity for buyers seeking a property in need of renovation, with ample scope for further development (subject to the relevant planning consents). Spanning approximately 1,100 square feet, the home offers generous accommodation throughout and provides a blank canvas for those looking to create a truly impressive family residence.

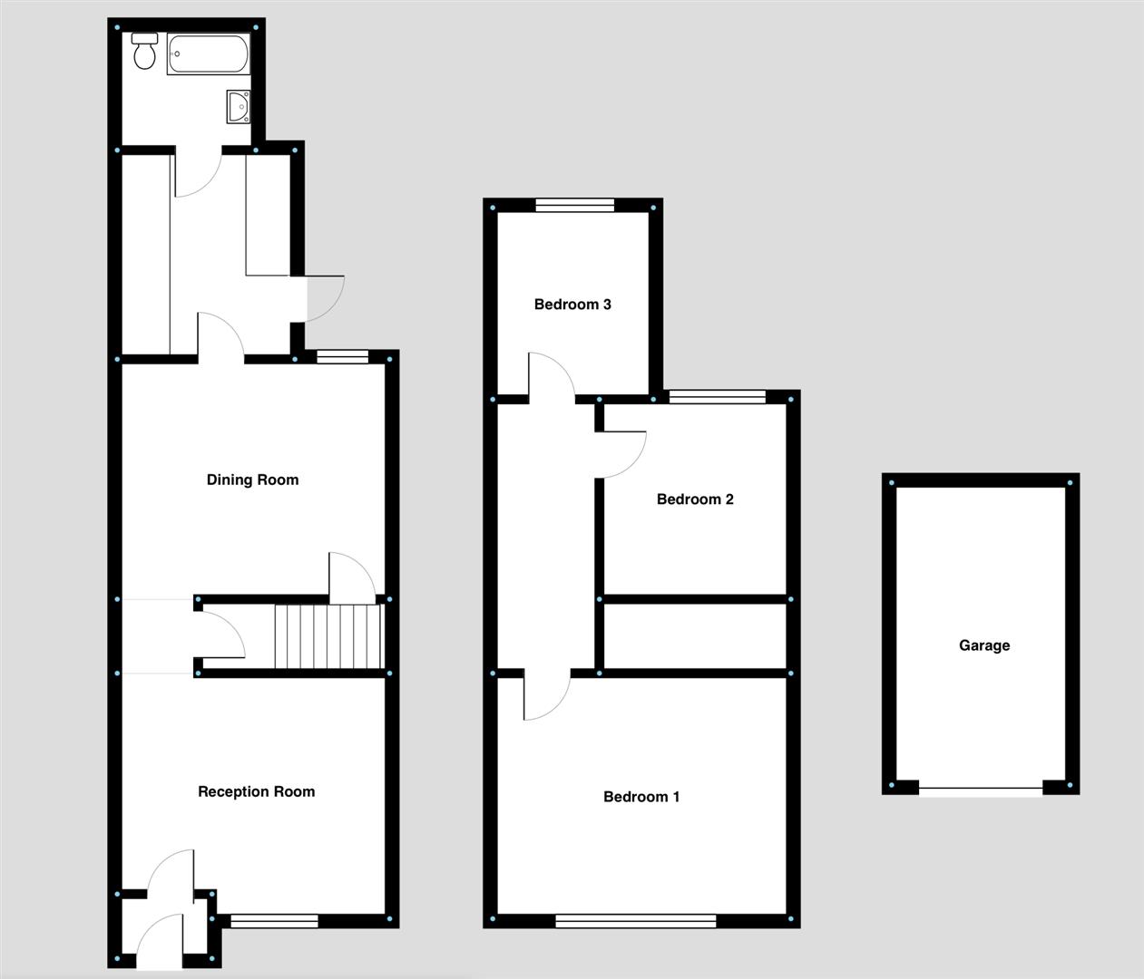
The ground floor features two well-proportioned reception rooms, ideal for both living and dining, alongside a spacious kitchen offering plenty of potential to reconfigure or extend. Completing the ground floor is a three-piece bathroom suite. To the first floor, the property offers three good-sized double bedrooms, each benefitting from natural light and flexible layout options to suit individual needs.

Externally, the home enjoys an extensive rear garden—a superb space for outdoor entertaining or further extension possibilities. At the bottom of the garden sits a detached garage, with access provided via a private road to the rear, offering both off-road parking and convenient rear access.

Living Room - 3.76m x 3.53m (12'4" x 11'7")
Dining Room - 3.58m x 3.53m (11'9" x 11'7")
Kitchen - 3.28m x 2.29m (10'9" x 7'6")
Bedroom 1 - 3.66m x 4.57m (12'0" x 15'0")
Bedroom 2 - 3.58m x 3.58m (11'9" x 11'9")
Bedroom 3 - 3.28m x 2.29m (10'9" x 7'6")
Single Garage - 5.51m x 3.10m (18'1" x 10'2")

About Ellistown
Ellistown is a popular village situated close to Coalville and conveniently positioned for access to major road networks including the M1 and A511. The village offers a friendly community atmosphere with local shops, amenities, and well-regarded schools nearby. Surrounded by open countryside yet within easy reach of Leicester, Loughborough, and Ashby-de-la-Zouch, Ellistown provides the perfect balance between rural charm an

At Berkley Estates, we invest time heavily in the visual and digital representation of our client’s properties with the in-house marketing department we have.

Follow us @berkleyestates

Our property descriptions are short because we would rather talk with you about the properties we sell and let and of course meet with you and show you around.

Floorplans

Get in contact with us

By providing Berkley Estates with your contact information, you acknowledge and agree to our Privacy Policy and consent to receiving marketing communications, including automated calls, text messages, and emails, some of which may use artificial or prerecorded voices. This consent is not a condition of purchasing any products or services, and you may opt out at any time. To stop receiving text messages, reply “STOP” at any time. To unsubscribe from emails, click the unsubscribe link included in our emails. Message and data rates may apply.