Swannington Road
£550,000
4 Bedrooms
3 Bathrooms

Like what you see?

For Sale

Property Summary

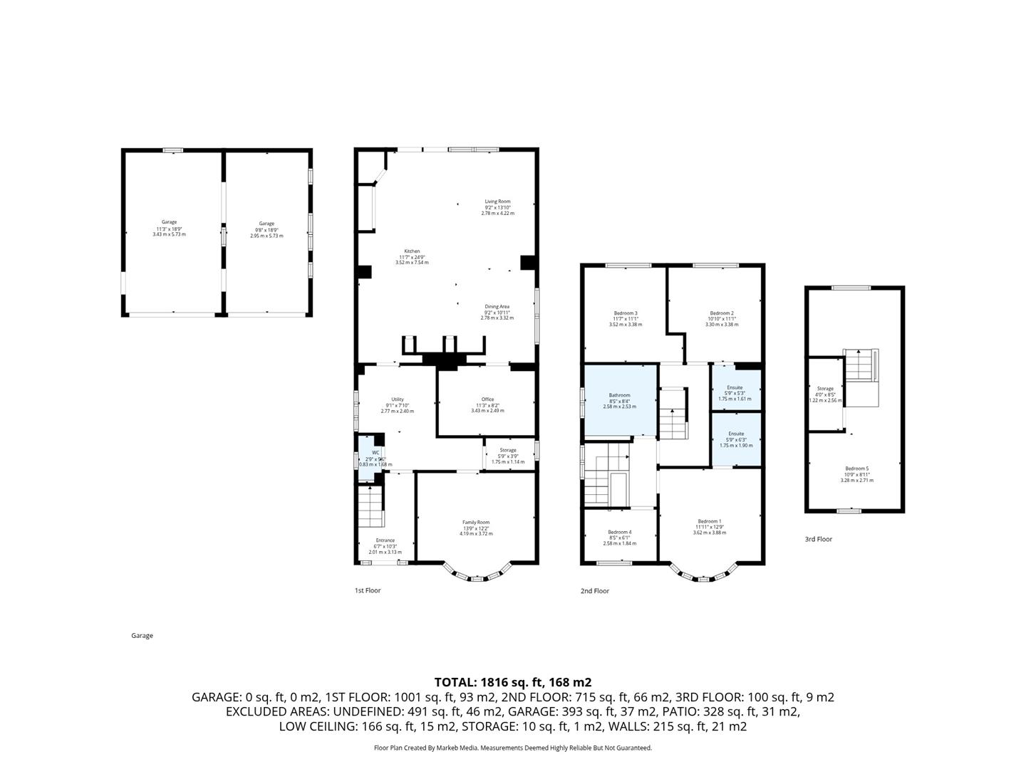
STUNNING EXTENDED FAMILY HOME - This beautifully designed and extensively upgraded four double bedroom detached home, offering spacious and beautifully appointed living accommodation with an overall floor area of over 2300 square feet and offers a unique blend of contemporary style, functional living and high quality finishes. This superb home offers a generous plot and includes an impressive open plan living dining kitchen with wide patio doors giving access to a beautiful low maintenance rear garden that leads to a triple detached garage/ workshop which has the potential to be an annex, games room/gym This property offers generous room proportions with three particularly spacious double bedrooms, two with contemporary en-suites and a further stylish contemporary bathroom.

THE PROPERTY
Step through the entrance into a stunning hallway adorned with elegant panelling that sets the tone for this seriously interior-led home, created with love for the modern family.
The ground floor flows beautifully, beginning with a sophisticated living room featuring a striking media wall that creates an inviting focal point. The heart of this home is undoubtedly the spectacular living kitchen, crowned with an orangery roof that floods the space with natural light. Bi-fold doors seamlessly connect indoor and outdoor living, whilst the bespoke Kingswood kitchen commands attention with its expansive island, integrated barrister drinks station, and cleverly concealed bar - perfect for entertaining. Underfloor heating and a second media wall add both comfort and contemporary style.
A versatile study provides the ideal work-from-home space or could serve as a private gym. The exceptional utility room, also expertly installed by Kingswood Designs, features thoughtful storage solutions alongside a convenient W.C. and practical boot room - keeping everyday life organised.

Property Features

  • Comprehensively renovated and extended by current owners creating a stunning family home
  • Spectacular living kitchen with orangery roof, bi-fold doors, and bespoke Kingswood kitchen featuring large island and barrister drinks station with hidden bar
  • Two striking media walls adding contemporary style to living spaces
  • Impressive triple garage/workshop with potential for annex conversion (STPP) + Private Driveway for several vehicles
  • East-facing sunny garden with patio, lawn, and secure gated access
  • Stylish family bathroom with pebble-shaped feature bath
  • Four bedrooms - Master & Bedroom Two both with modern ensuites
  • Versatile study/gym, exceptional utility room by Kingswood Designs with W.C. and boot room
  • Generous attic room providing flexible guest accommodation or private retreat
  • Sought-after village location within National Forest with excellent commuter links to M1 J22, Ashby-de-la-Zouch, and Coalville

At Berkley Estates, we invest time heavily in the visual and digital representation of our client’s properties with the in-house marketing department we have.

Follow us @berkleyestates

Our property descriptions are short because we would rather talk with you about the properties we sell and let and of course meet with you and show you around.

Floorplans

Get in contact with us

By providing Berkley Estates with your contact information, you acknowledge and agree to our Privacy Policy and consent to receiving marketing communications, including automated calls, text messages, and emails, some of which may use artificial or prerecorded voices. This consent is not a condition of purchasing any products or services, and you may opt out at any time. To stop receiving text messages, reply “STOP” at any time. To unsubscribe from emails, click the unsubscribe link included in our emails. Message and data rates may apply.