Winfield Way
£315,000
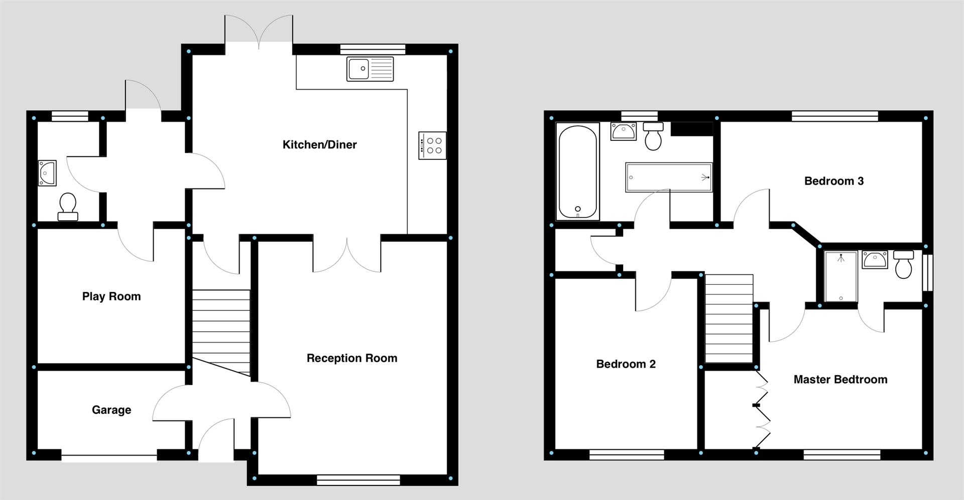
3 Bedrooms
2 Bathrooms

Like what you see?

For Sale

Property Summary

A beautifully presented modern home, built in 2020 and finished to a high standard throughout, offering over 1,000 sq. ft. of stylish living accommodation in the heart of the sought-after village of Blackfordby.

Tucked away on a quiet, well-regarded development, this impressive three-bedroom home combines contemporary design with practical family living. To the front, the property benefits from off-road parking for two vehicles and access to the integral garage, which has been partially converted to create a versatile playroom or home office while retaining valuable storage space to the front.

The welcoming entrance hall sets the tone for the home, leading through to a bright and spacious living room filled with natural light. The open-plan kitchen and dining area offers an ideal space for entertaining, featuring modern fittings and French doors opening out to the private rear garden. The ground floor also benefits from a useful utility room and a stylish guest cloakroom/WC.

Upstairs, the principal bedroom enjoys built-in wardrobes and a sleek en suite shower room, while two further well-proportioned bedrooms provide excellent flexibility for family or guests. Completing the first floor is a beautifully appointed four-piece family bathroom, finished with quality fixtures and contemporary tiling.

Outside, the private rear garden offers the perfect balance of lawned, patio, and decked areas — ideal for both relaxation and alfresco dining.

At Berkley Estates, we invest time heavily in the visual and digital representation of our client’s properties with the in-house marketing department we have.

Follow us @berkleyestates

Our property descriptions are short because we would rather talk with you about the properties we sell and let and of course meet with you and show you around.

Floorplans

Get in contact with us

By providing Berkley Estates with your contact information, you acknowledge and agree to our Privacy Policy and consent to receiving marketing communications, including automated calls, text messages, and emails, some of which may use artificial or prerecorded voices. This consent is not a condition of purchasing any products or services, and you may opt out at any time. To stop receiving text messages, reply “STOP” at any time. To unsubscribe from emails, click the unsubscribe link included in our emails. Message and data rates may apply.