Berkley Estates

Your trusted property experts in Leicestershire. Specialising in sales, lettings, development, property management, and block management, our experienced team provides a full-service approach with a commitment to excellence and outstanding results.

York House
£149,000
1 Bedrooms
1 Bathrooms

Like what you see?

For Sale

Property Summary

For those seeking refined contemporary living, York House in Ashby presents an exceptional opportunity. This beautifully reimagined period building has been thoughtfully converted into just 11 distinctive apartments, delivering a lifestyle of understated luxury in the centre of this vibrant market town.

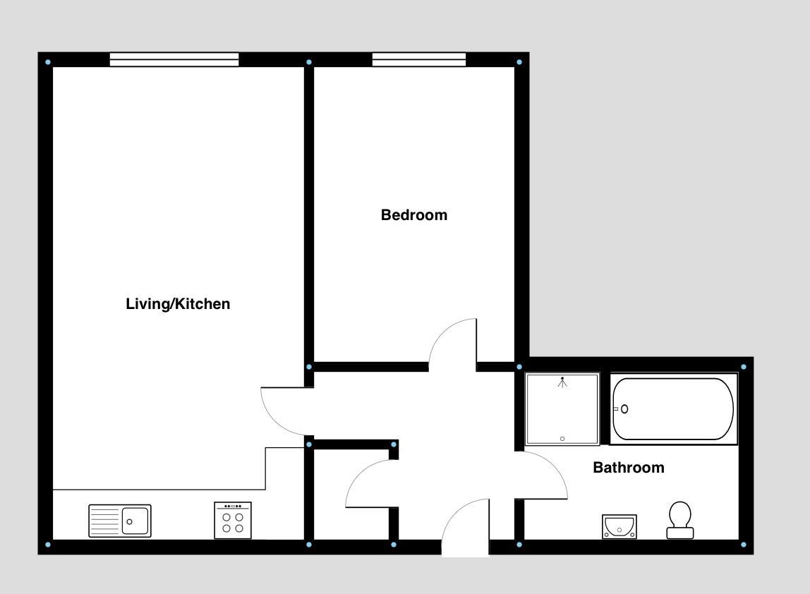
A true highlight of the development is the impressive ground floor apartment, providing approximately 560 square feet of stylish open-plan accommodation. The layout comprises a welcoming entrance hall, generous living area, separate modern kitchen, spacious double bedroom and an elegant, hotel-inspired bathroom. The property is offered to the market with no upward chain.

York House has been finished to an exacting standard throughout, with every detail carefully considered. Each apartment showcases contemporary interiors of outstanding quality, including sleek high-gloss kitchens complete with integrated appliances and quartz work surfaces, luxurious bathrooms, and soft fitted carpets that add warmth and comfort.

Modern living is further enhanced by a host of up-to-date features such as a video entry system, energy-efficient electric heating, mechanical ventilation with heat recovery, recessed downlighting, and stylish chrome sockets with built-in USB charging points.
While the interiors alone are enough to tempt, the sought-after Smisby Road location adds invaluable appeal. Just a short walk from the heart of Ashby town centre's boutiques, eateries, pubs, park, and leisure amenities, residents will be immersed in the unique local culture and atmosphere that makes this community so special.

PLEASE NOTE The some internal photographs show another property when it was a furnished showhome
The property also benefits from an exceptionally long 996-year lease, with the added option for owners to become shareholders in the management company.

Property Features

  • Spacious one bed apartment
  • High Specification
  • 996 Year lease
  • Ground Floor
  • Allocated parking space
  • Bespoke Kitchen with integrated applicanes
  • Spacious open plan living
  • Secure video entry system
  • Availble now with no onward chain
  • 560 Sq ft

At Berkley Estates, we invest time heavily in the visual and digital representation of our client’s properties with the in-house marketing department we have.

Follow us @berkleyestates

Our property descriptions are short because we would rather talk with you about the properties we sell and let and of course meet with you and show you around.

Floorplans

Get in contact with us

By providing Berkley Estates with your contact information, you acknowledge and agree to our Privacy Policy and consent to receiving marketing communications, including automated calls, text messages, and emails, some of which may use artificial or prerecorded voices. This consent is not a condition of purchasing any products or services, and you may opt out at any time. To stop receiving text messages, reply “STOP” at any time. To unsubscribe from emails, click the unsubscribe link included in our emails. Message and data rates may apply.